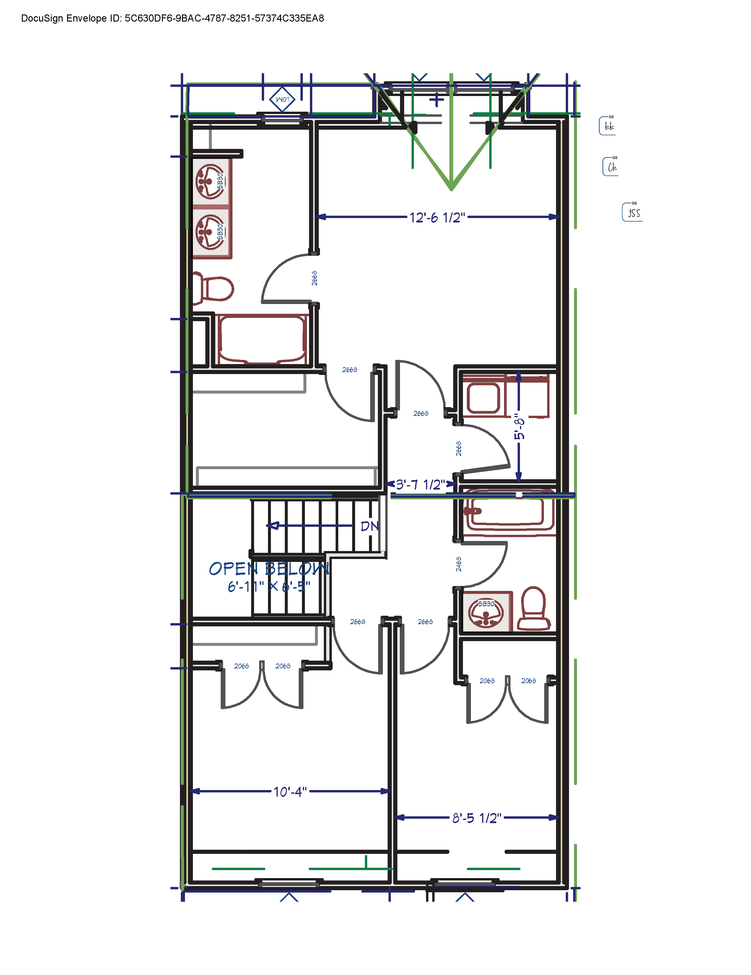
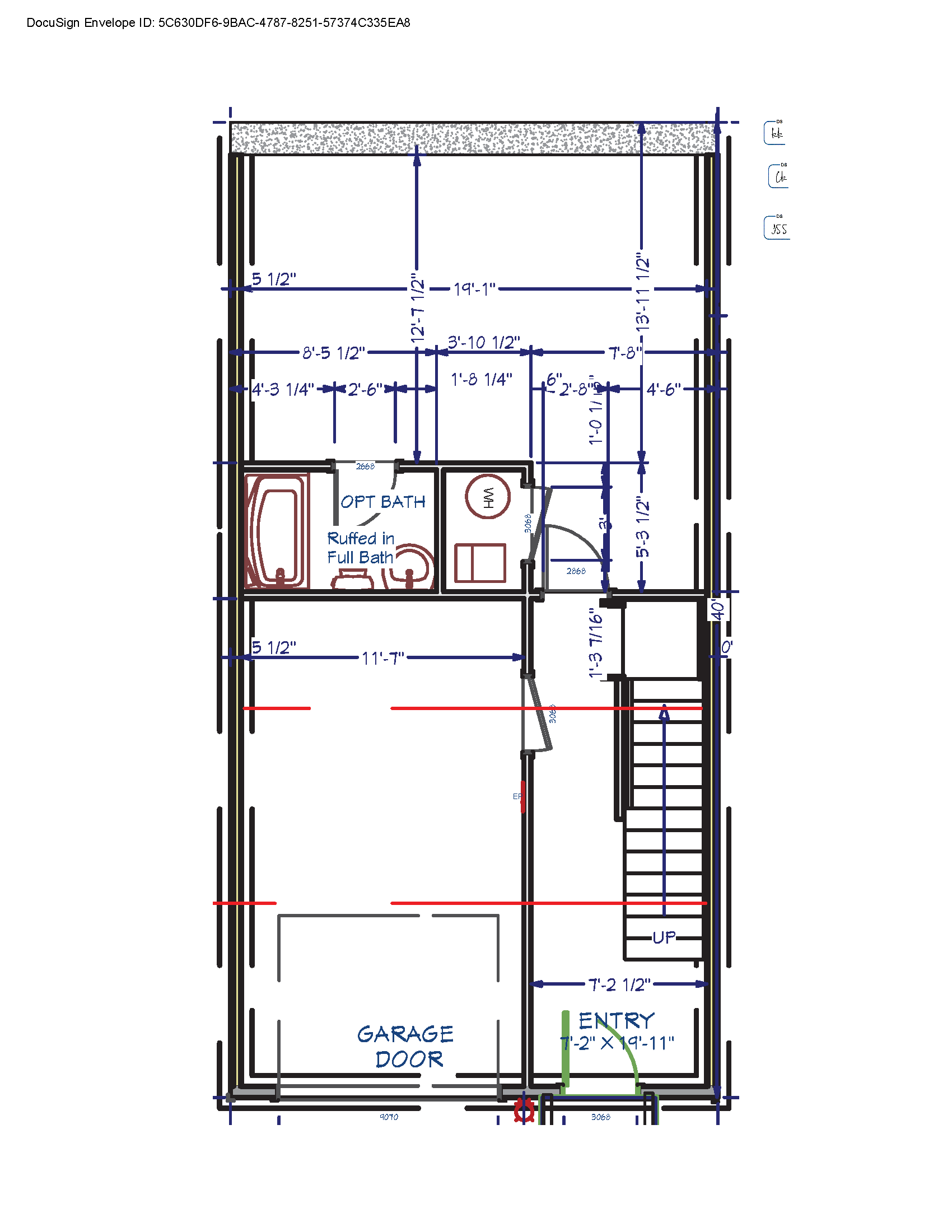
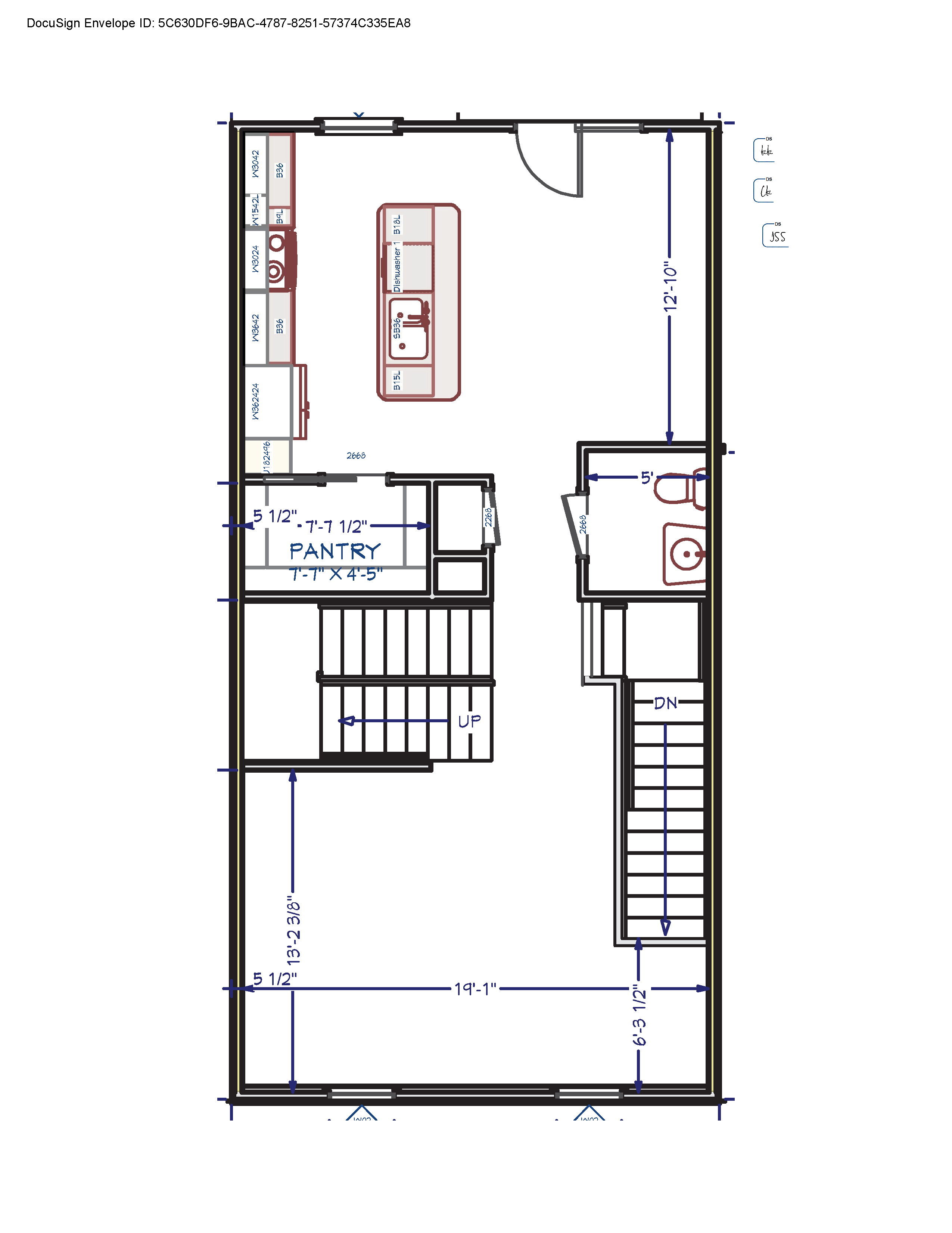
ADDR
CONGERS - 15  ::  2858 Belgian Drive
[ BUILD: 20200001996 ]      
CRITICAL PATH   |   INSPECTIONS   |   FLOOR PLANS   |   SELECTIONS   |   SPECS   |   CHANGES   |   NHS