CONGERS-3
VILLAS
CONGERS-4
CONGERS-2
CONGERS
•
ADDR
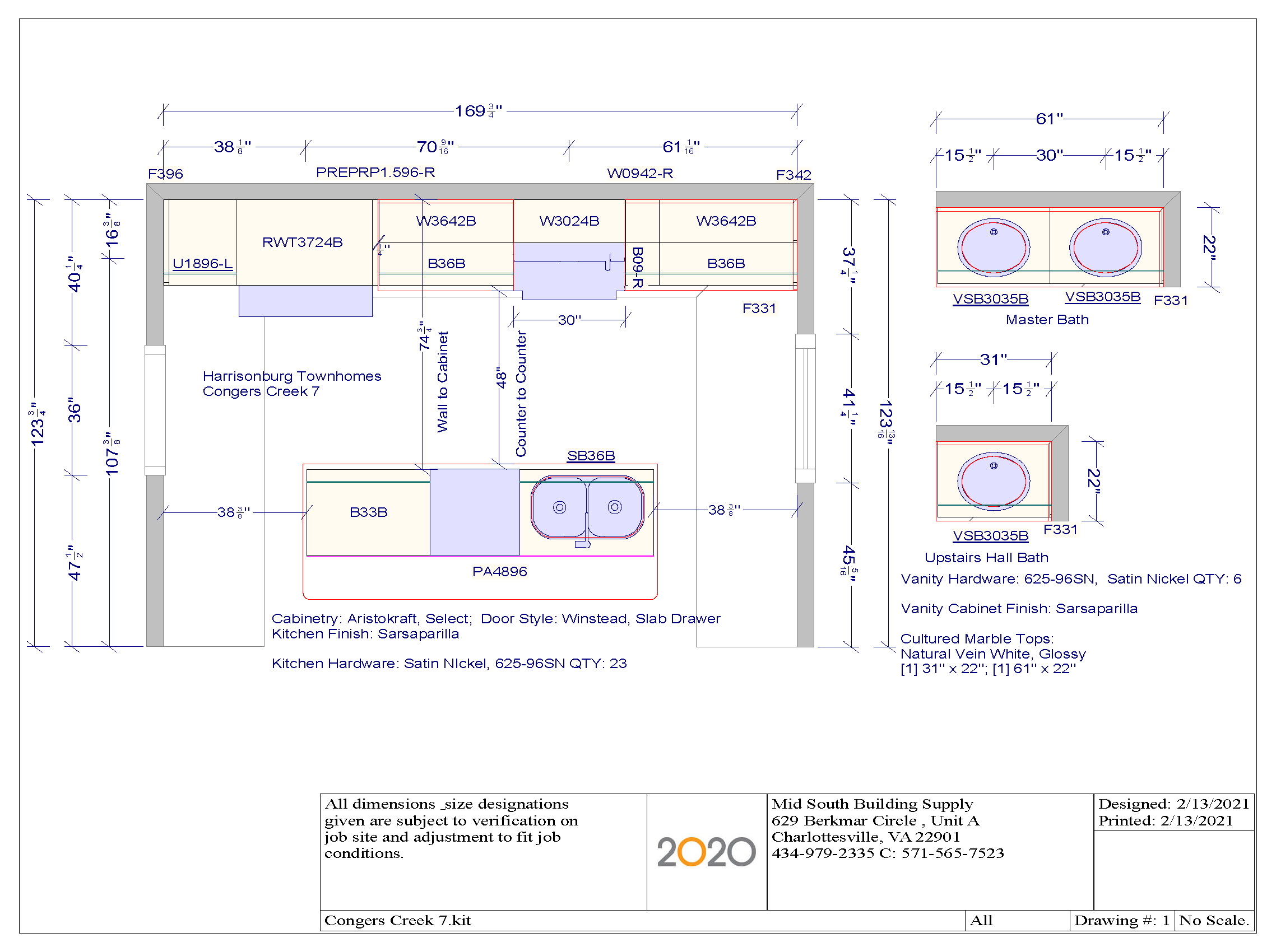
CONGERS - 7 :: 2814 Belgian Drive
[ BUILD:
20200001985
]
CRITICAL PATH
|
INSPECTIONS
|
FLOOR PLANS
|
SELECTIONS
|
SPECS
|
CHANGES
|
NHS