CONGERS-3
VILLAS
CONGERS-4
CONGERS-2
CONGERS
•
ADDR
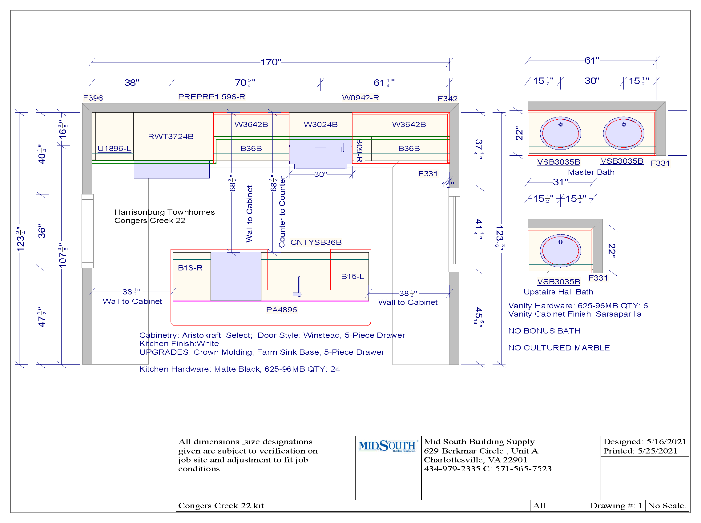
CONGERS - 22 :: 2898 Belgian Drive
[ BUILD:
20200002174
]
CRITICAL PATH
|
INSPECTIONS
|
FLOOR PLANS
|
SELECTIONS
|
SPECS
|
CHANGES
|
NHS