CONGERS-3
VILLAS
CONGERS-4
CONGERS-2
000
•
37
•
21
20
19
17
16
•
15
14
13
•
33
32
31
30
29
28
•
12
11
10
9
•
8
7
6
5
•
1
2
3
4
•
ADDR
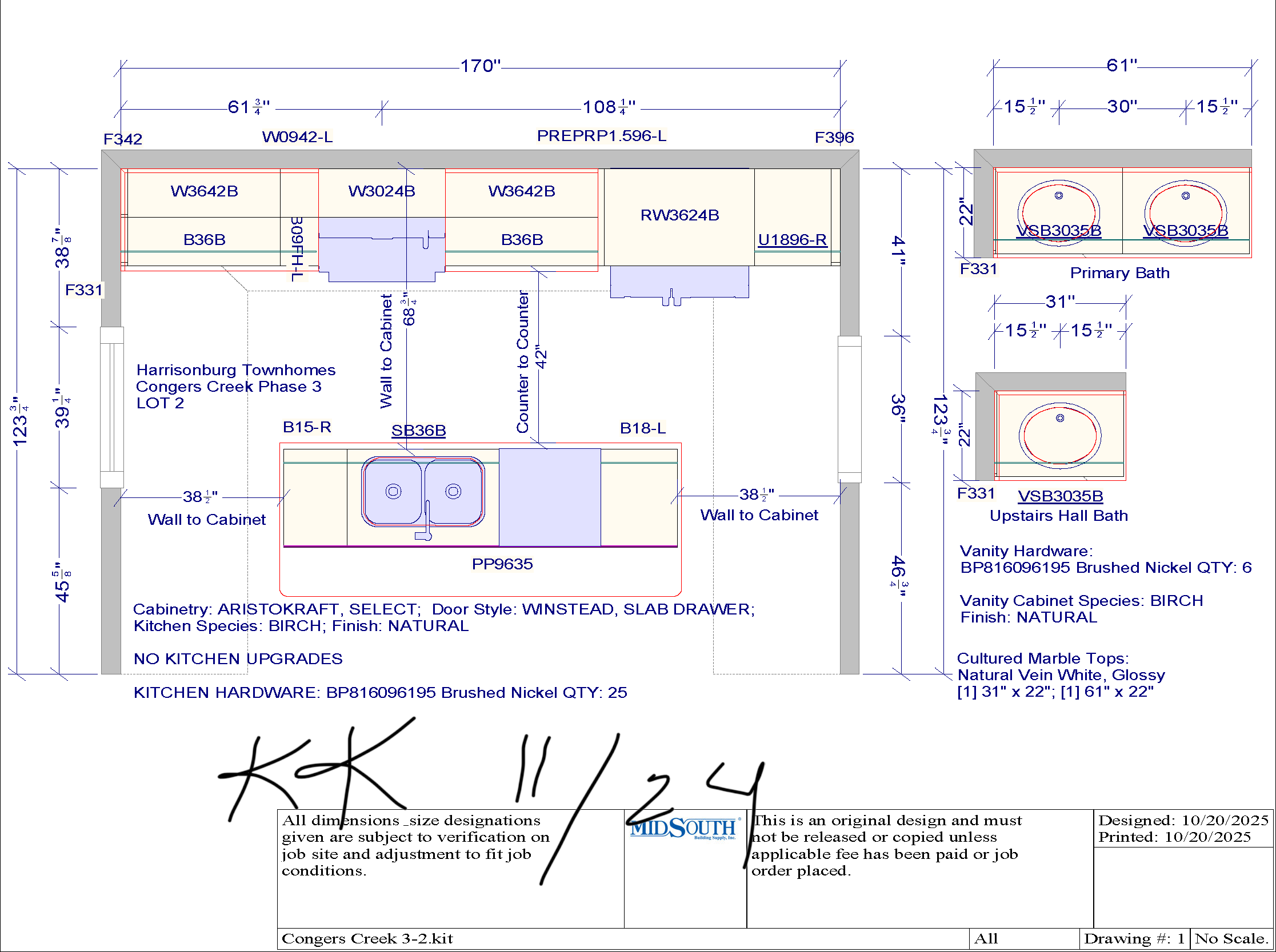
CONGERS-3 - 2 :: 1309 Derby Drive
[ BUILD:
20250781
]
CRITICAL PATH
|
INSPECTIONS
|
FLOOR PLANS
|
SELECTIONS
|
SPECS
|
CHANGES
|
NHS