000 40 37 20 13 32 31 30 29 28 12 11 10 9 5 6 7 8 1 2 3 4 ADDR
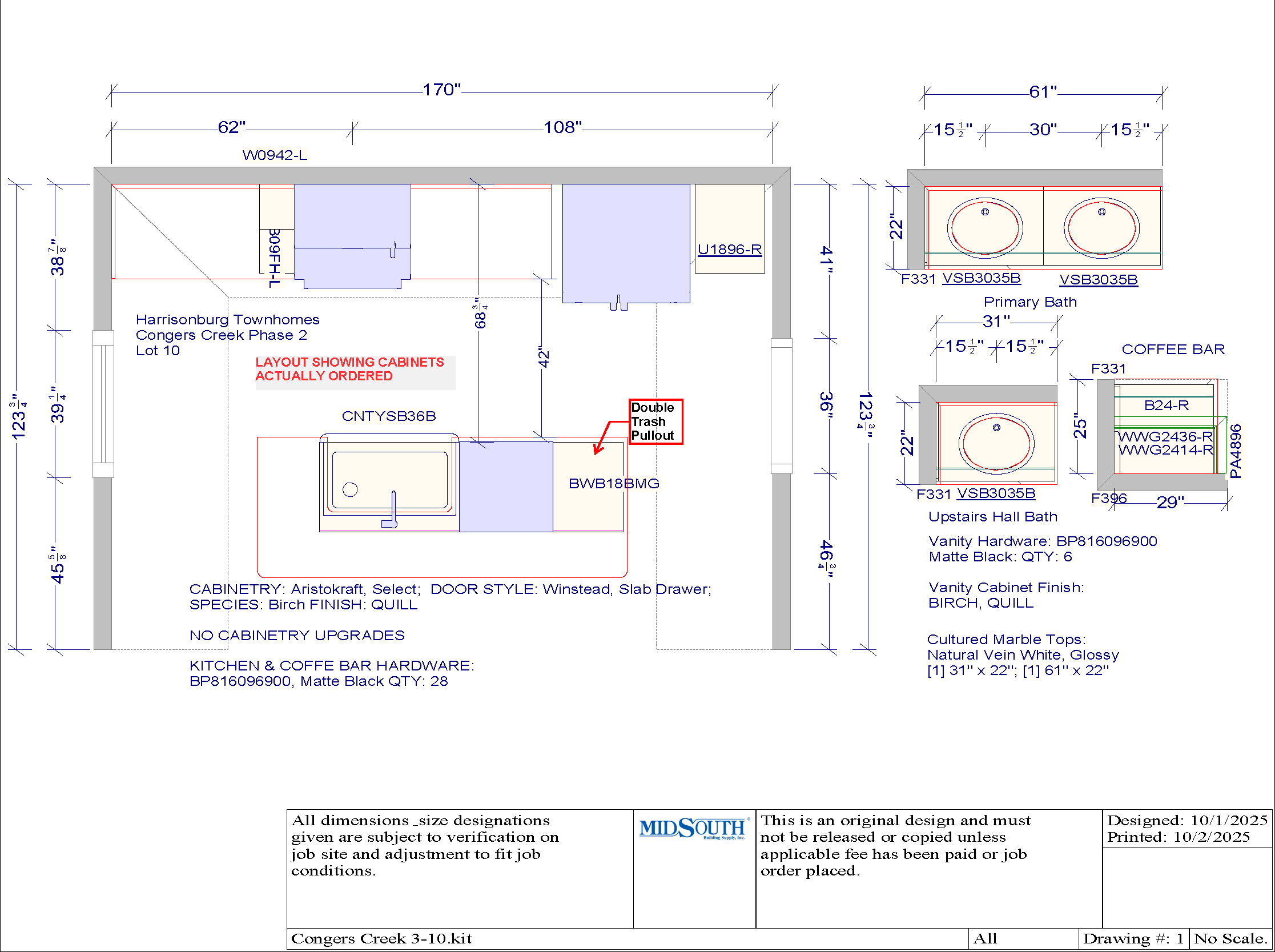
CONGERS-3 - 10  ::  1363 Derby Drive
[ BUILD: 20250712 ]      
CRITICAL PATH   |   INSPECTIONS   |   FLOOR PLANS   |   SELECTIONS   |   SPECS   |   CHANGES   |   NHS