CONGERS-3
VILLAS
CONGERS-4
CONGERS-2
CONGERS
000
•
501
501-101
501-102
501-201
501-202
501-301
501-302
•
507-101
507-102
507-201
507-202
507-301
507-302
•
ADDR
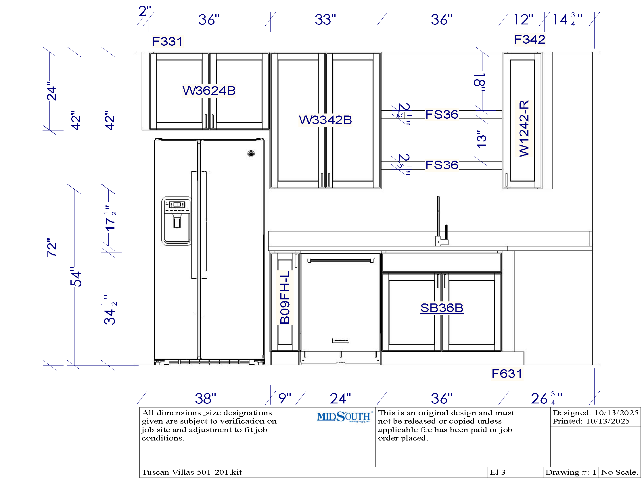
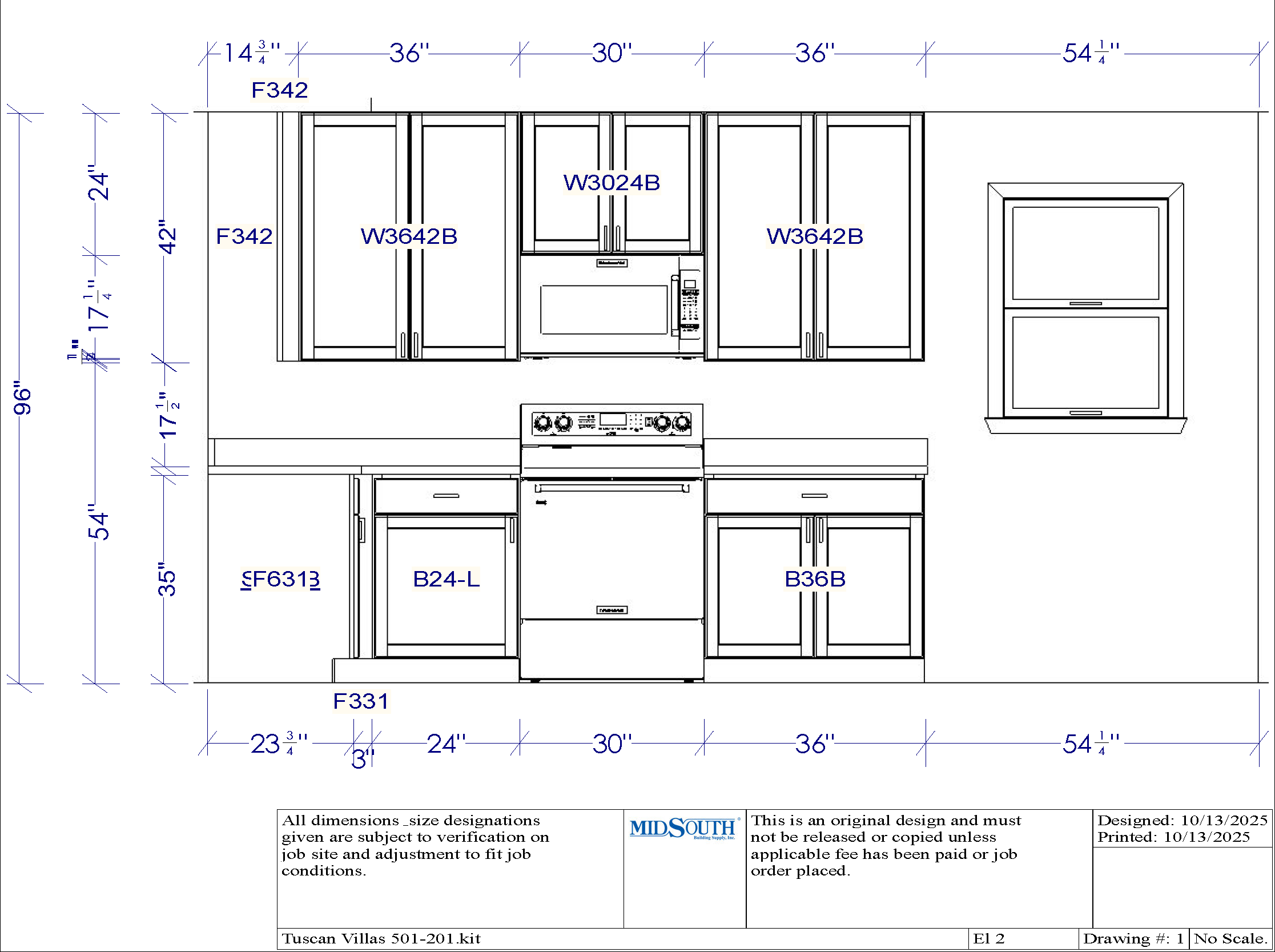
VILLAS - 501-201 :: 501 Roman Way #201
CRITICAL PATH
|
INSPECTIONS
|
FLOOR PLANS
|
SELECTIONS
|
SPECS
|
CHANGES
|
NHS