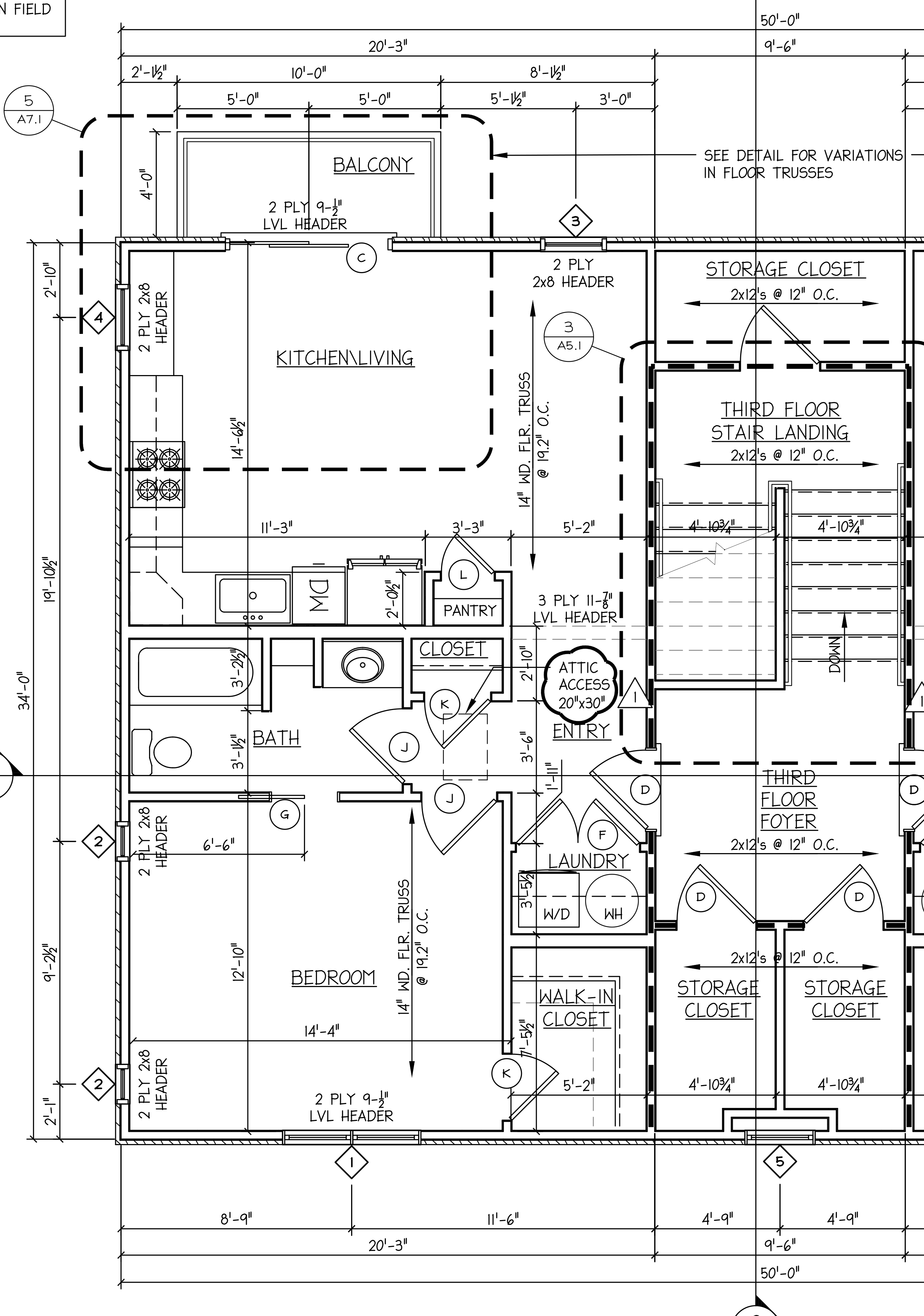
VILLAS - 501-301  ::  501 Roman Way #301
CRITICAL PATH   |   INSPECTIONS   |   FLOOR PLANS   |   SELECTIONS   |   SPECS   |   CHANGES   |   NHS